Freistehendes Walkin-Festteildusche von Glas Scholl

neu responsive programmierte Referenz aus dem Jahr 2011

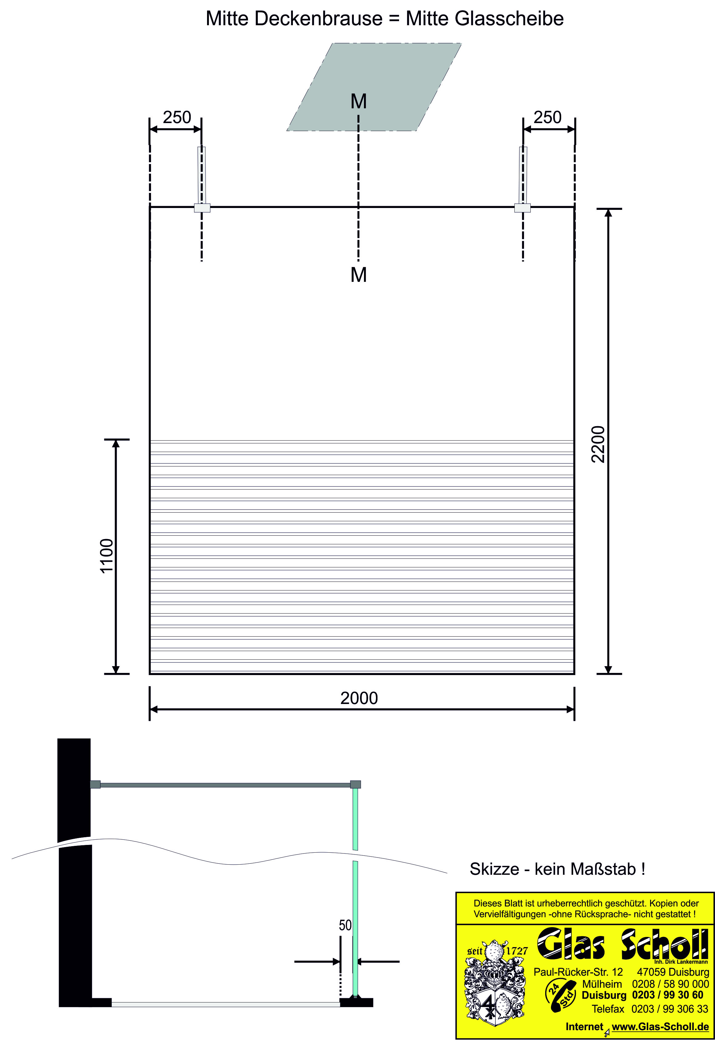
Hier sehen Sie eine Walkin-Dusche mit einem großem freistehenden Festteil, das lediglich mit zwei Stabilisierungsstangen gehalten wird. Die Scheibe wurde im unteren Bereich mit einem Ätzdekor-Siebdruck-Dekor, nach unserer Vorgabe, versehen. Ein wirklich schöne barrierefreie Duschabtrennung. Auf Wunsch des Kunden, wurde der vordere Eingang, nachträglich, mit einem kurzen Festteil geschlossen. Den Prospekt der Design Quadrato Beschläge finden Sie hier.
Fordern Sie uns oder schauen Sie sich alle Glasduschen-Referenzen dieser Webseite an.

Adresse

Scholl GmbH
Inh. Dirk Lankermann
Paul-Rücker-Straße 12
47059 Duisburg-Neuenkamp 
Ihr Anfahrt zu uns

Follow Us
Kontake